Appartamento + terratetto adiacente – Viale Adua

Pistoia - zona Pistoia Ovest

Rif: 25V46
Condividi Linkedin Whatsapp Stampa
€ 410.000
Terratetto
377 Mq
11 Vani
Classe energetica G
6 Camere
3 Bagni
In una tranquilla traversa di Viale Adua, all'interno di un'ampia corte a comune chiusa da cancello elettrico carrabile, proponiamo in esclusiva la vendita di due immobili adiacenti, con ingressi indipendenti e posti auto riservati.

Una soluzione rara, perfetta per chi cerca due abitazioni vicine — ideali per famiglie con più nuclei, genitori e figli, oppure per abitazione principale + investimento a reddito o seconda casa da personalizzare.

1. Appartamento completamente ristrutturato – Piano Terra

- Ingresso indipendente;

- Cucina abitabile separata;

- Ampia zona giorno;

- Due camere, una matrimoniale e una cameretta;

- Bagno finestrato con doccia walk-in;

- Riscaldamento autonomo e aria condizionata;

- Infissi in legno con vetrocamera;

- Nessuna spesa condominiale;

- Posto auto all'interno della corte.

Soluzione chiavi in mano, pronta da abitare, ideale per chi cerca comfort e indipendenza.

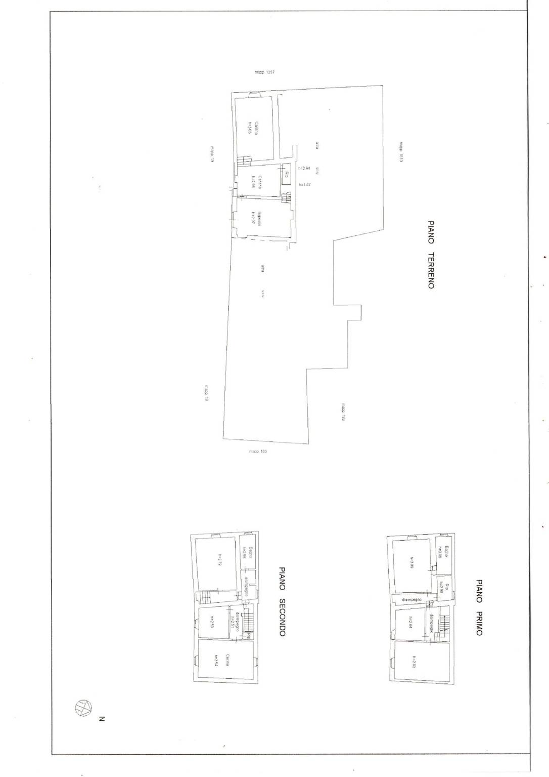
2. Terratetto da ristrutturare – Su tre livelli

- Tre ampi vani al piano terra (ex magazzini);

- Al primo piano: due vani, una cameretta/studio, bagno e ripostiglio;

- Al secondo piano: sala, cucina abitabile, cameretta/studio, bagno e ripostiglio;

- Ingresso indipendente;

- Posto auto all'interno della corte;

- Nessuna spesa condominiale.

Perfetto per chi desidera personalizzare gli spazi o realizzare una seconda abitazione su misura, anche come investimento.

Posizione strategica: zona servita ma silenziosa, vicina a scuole, supermercati, mezzi pubblici e principali snodi cittadini.

Un'opportunità unica, con grande potenziale residenziale o anche in ottica familiare e immobiliare.
Disponibilità immediata. Vendita in blocco.

Sanpaolo Immobiliare - Percorso immobiliare sartoriale, cucito su misura per te.

Dettaglio immobile

Contratto Vendita
Rif 25V46
Prezzo € 410.000
Provincia Pistoia
Comune Pistoia
Zona Pistoia Ovest
Indirizzo Via Giosuè Agati
Superficie 377 mq
Vani 11
Camere 6
Bagni 3
Classe energetica G (DL 90/2013)
EPgl,nren 162,13 kwh/m2 anno
Riscaldamento autonomo
Condizioni da ristrutturare
Ascensore no
Cantina si
Parcheggio si
Cucina abitabile

Consistenze

Descrizione Superficie Sup. comm.
Principali
Immobile - piano terra 100 Mq 100 Mqc
Immobile - piano terra 277 Mq 277 Mqc
Totale 377 Mqc

Video

Planimetrie

Richiedi maggiori informazioni

Autorizzazione al trattamento dei dati personali+
Dichiaro di aver letto l'informativa sulla privacy ed accetto le condizioni d'utilizzo del servizio.
Riempi il campo con il codice riportato nell'immagine*
Codice Captcha
 
FIMAA
Chiamaci Contattaci