Terratetto da ristrutturare con posto auto

Pistoia - zona Pistoia Ovest

Rif: 25V45
Condividi Linkedin Whatsapp Stampa
€ 220.000
Terratetto
270 Mq
6 Vani
Classe energetica G
4 Camere
2 Bagni
In una tranquilla traversa di Viale Adua, all'interno di un'ampia corte a comune chiusa da cancello elettrico carrabile, proponiamo in vendita in esclusiva, un terratetto di ampia metratura, disposto su tre livelli e dotato di ingresso indipendente e posto auto riservato.

L'immobile, da ristrutturare, offre una grande flessibilità nella distribuzione degli spazi e si presta a molteplici soluzioni abitative, rendendolo ideale per famiglie numerose, professionisti che necessitano di ambienti separati o per chi desidera un progetto di riqualificazione personalizzato.

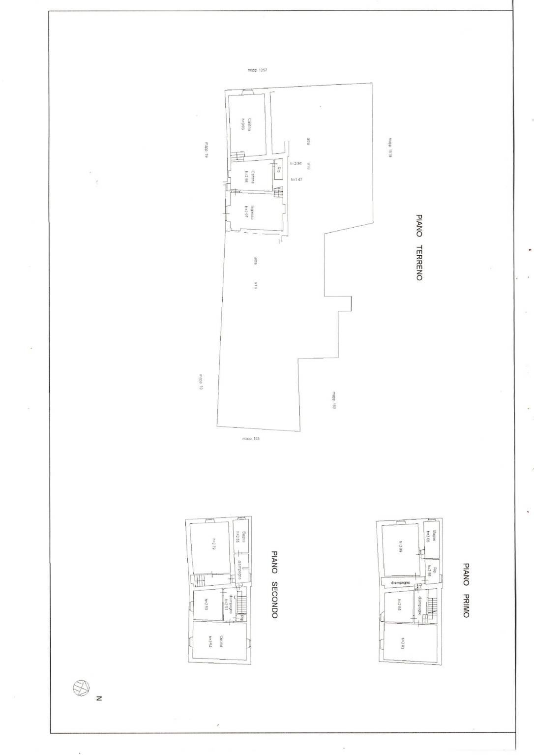
La distribuzione interna attuale è così composta:

- Piano terra: tre ampi vani ad oggi utilizzati come magazzino, con altezze e metrature che consentono la trasformazione in zona living, studio, taverna o locali accessori.

- Primo piano: due vani spaziosi, un terzo ambiente più contenuto (possibile cameretta o studio), bagno e ripostiglio.

- Secondo piano: zona giorno con sala, cucina abitabile, cameretta/studio, bagno e ripostiglio.

Punti di forza:

- Ingresso indipendente;

- Corte a comune con cancello elettrico;

- Posto auto assegnato;

- Ampia metratura su tre livelli;

- Struttura solida e facilmente rimodulabile.

La posizione è strategica: zona residenziale tranquilla, ben servita da scuole, negozi e mezzi pubblici, a breve distanza dal centro di Pistoia e dai principali collegamenti viari.

Un immobile perfetto per chi desidera realizzare una casa su misura, oppure per investitori alla ricerca di una soluzione con ottime potenzialità di valorizzazione.

Sanpaolo Immobiliare - Percorso immobiliare sartoriale, cucito su misura per te.

Dettaglio immobile

Contratto Vendita
Rif 25V45
Prezzo € 220.000
Provincia Pistoia
Comune Pistoia
Zona Pistoia Ovest
Indirizzo Via Giosuè Agati
Superficie 270 mq
Vani 6
Camere 4
Bagni 2
Classe energetica G (DL 90/2013)
EPgl,nren 175 kwh/m2 anno
Riscaldamento autonomo
Condizioni da ristrutturare
Anno di costruzione 1967
Ascensore no
Cantina si
Parcheggio si
Cucina abitabile

Consistenze

Descrizione Superficie Sup. comm.
Principali
Immobile - piano terra 90 Mq 90 Mqc
Immobile - 1° piano 90 Mq 90 Mqc
Immobile - 2° piano 90 Mq 90 Mqc
Totale 270 Mqc

Video

Planimetrie

Richiedi maggiori informazioni

Autorizzazione al trattamento dei dati personali+
Dichiaro di aver letto l'informativa sulla privacy ed accetto le condizioni d'utilizzo del servizio.
Riempi il campo con il codice riportato nell'immagine*
Codice Captcha
 
FIMAA
Chiamaci Contattaci